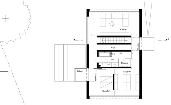
Haus R
Weiler-Simmerberg I Deutschland
Projektdaten
| Auftraggeber | Privater Bauherr |
| Daten | 223 m² Wohnfläche |
| 364 m² Brutto - Grundfläche (BGF) I 1.180 m³ Brutto - Rauminhalt (BRI) | |
| Status | Machbarkeitsstudie |
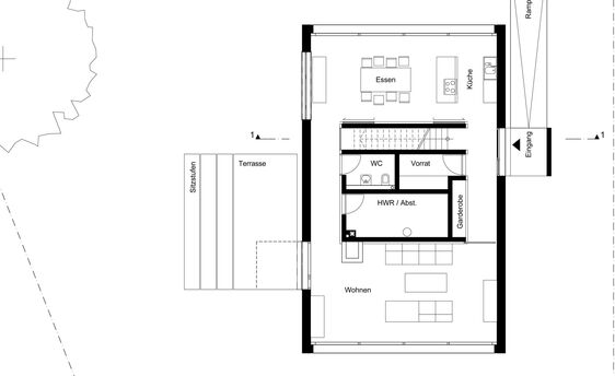
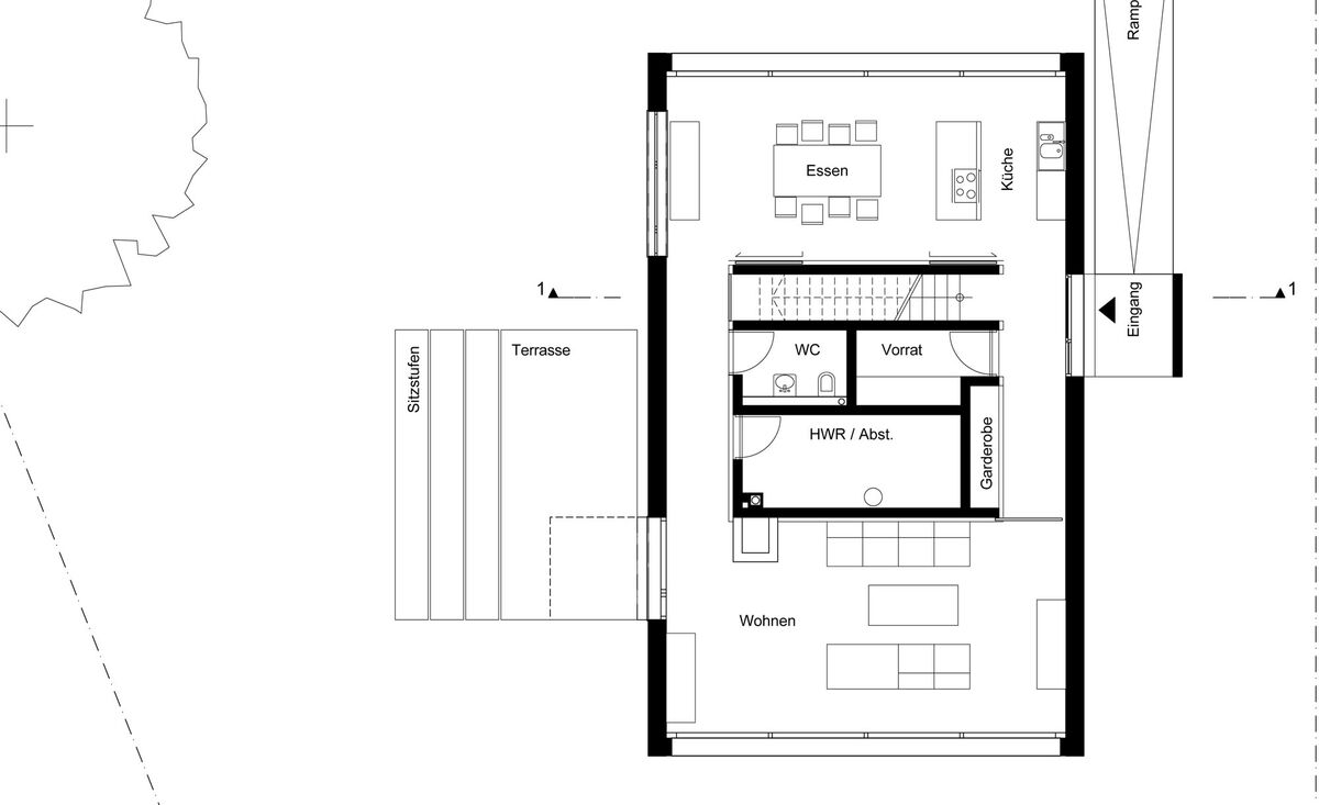
Weiler-Simmerberg I Deutschland
| Auftraggeber | Privater Bauherr |
| Daten | 223 m² Wohnfläche |
| 364 m² Brutto - Grundfläche (BGF) I 1.180 m³ Brutto - Rauminhalt (BRI) | |
| Status | Machbarkeitsstudie |