Bauernhof Kita Vaterstetten
Vaterstetten I Deutschland
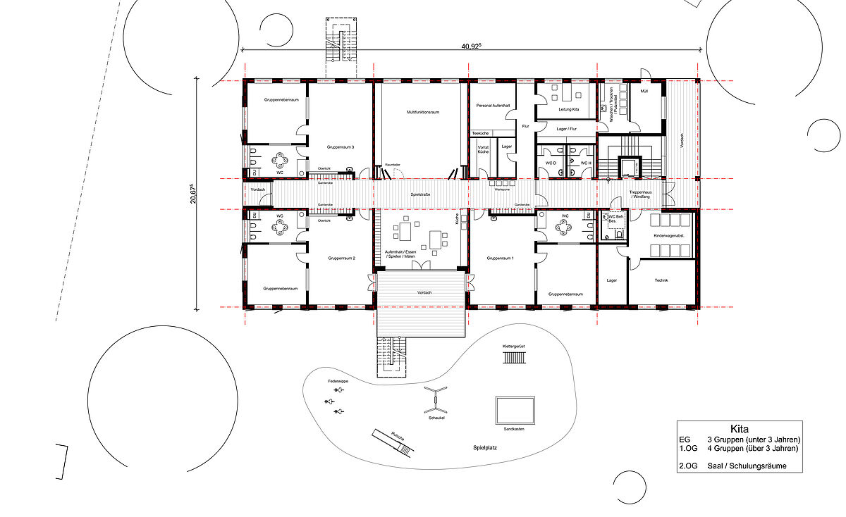
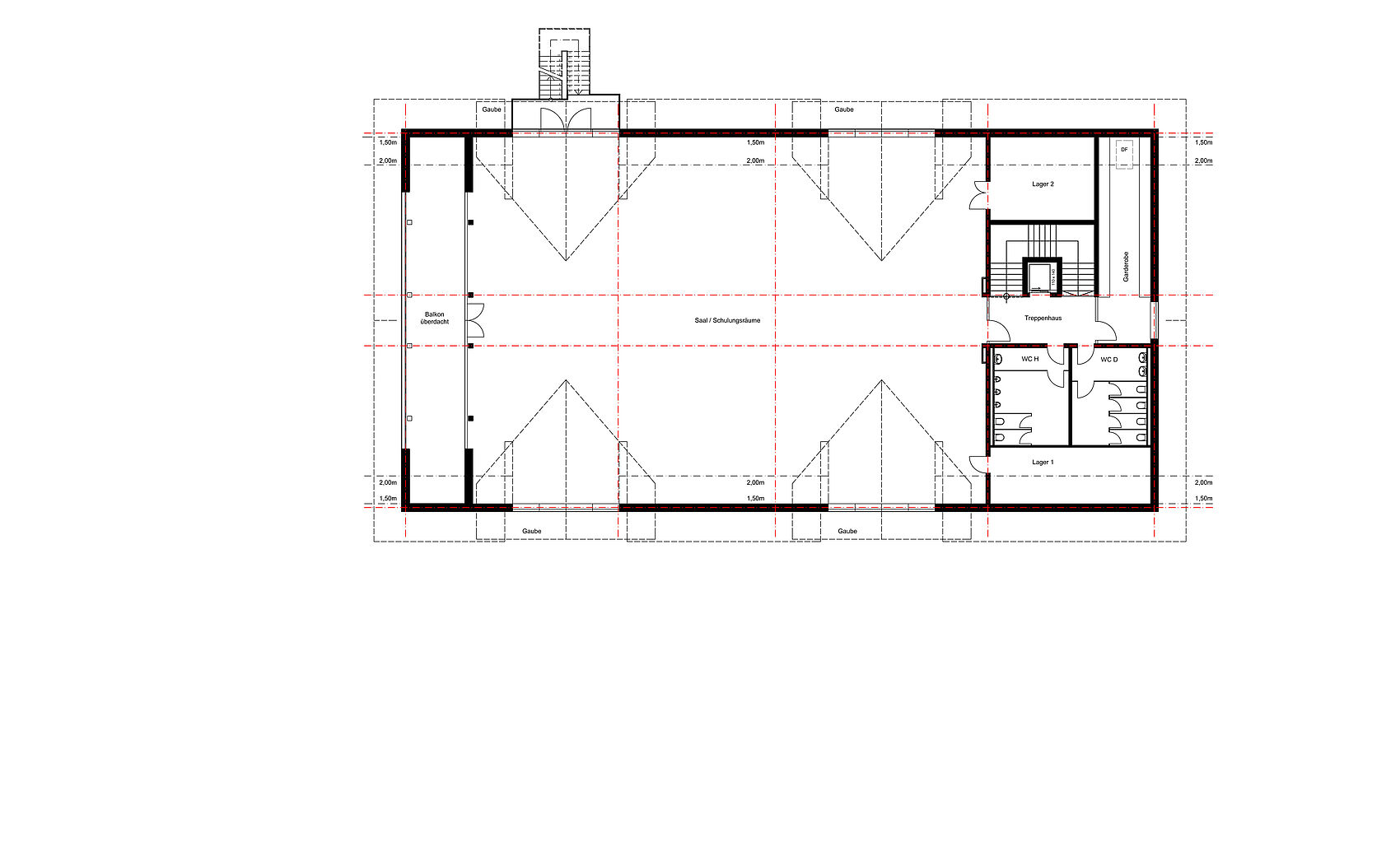
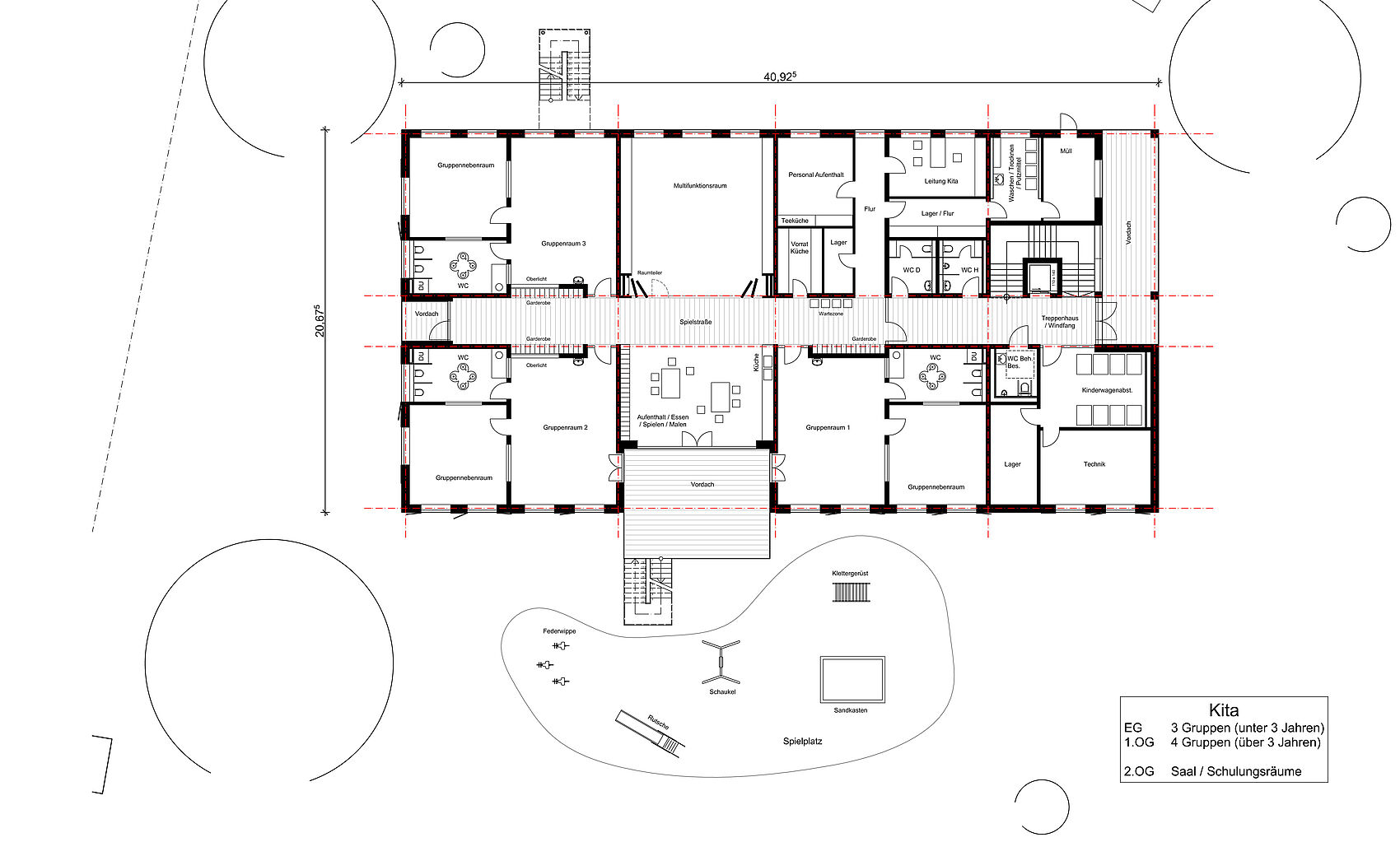
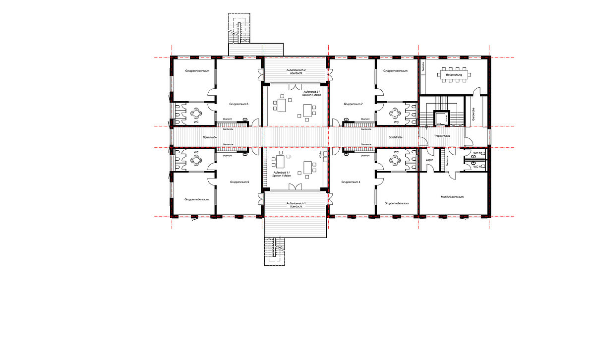
Projektdaten
| Auftraggeber | Privater Bauherr |
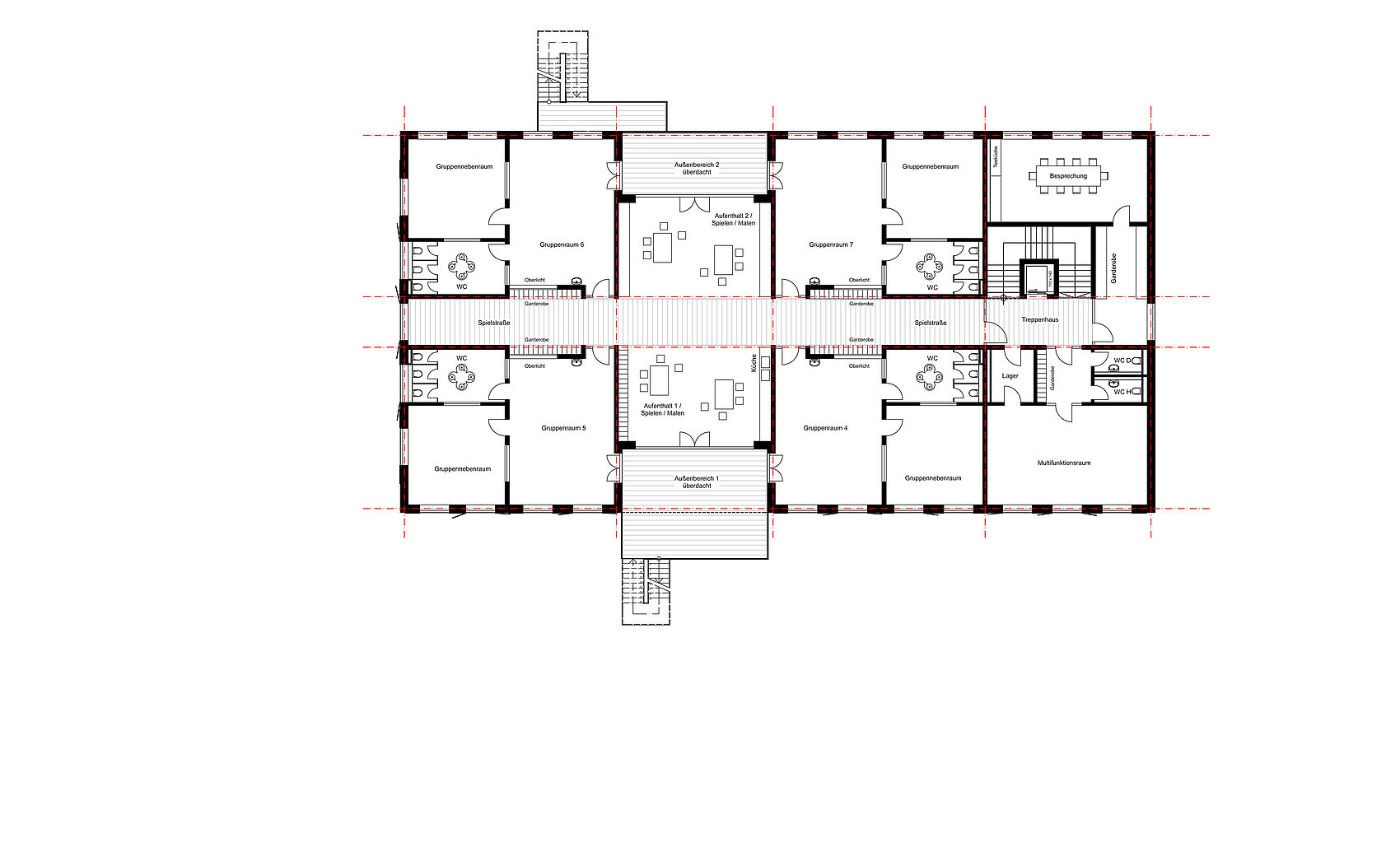
| Daten | 3 Gruppen (unter 3 Jahren) |
| 4 Gruppen (über 3 Jahren) | |
| Saal / Schulungsräume im 2. OG | |
| Status | Machbarkeitsstudie |
Vaterstetten I Deutschland
| Auftraggeber | Privater Bauherr |
| Daten | 3 Gruppen (unter 3 Jahren) |
| 4 Gruppen (über 3 Jahren) | |
| Saal / Schulungsräume im 2. OG | |
| Status | Machbarkeitsstudie |