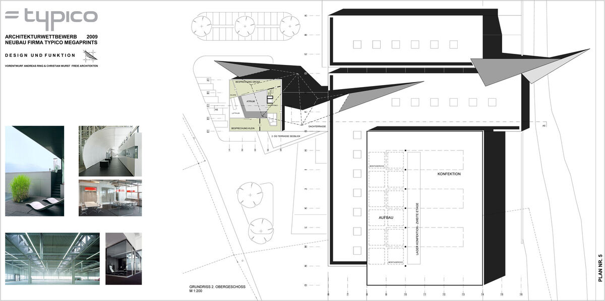
Industriebau Typico Megaprints
Lochau I Österreich
Projektdaten
| Auftraggeber | Typico Megaprints GmbH&Co. Lochau Österreich |
| Daten | 73.000 m³ Brutto - Rauminhalt (BRI) I 8.675 m² Netto - Raumfläche (NRF) |
| Status | Wettbewerb 2009 I 2. Platz |
Lochau I Österreich
| Auftraggeber | Typico Megaprints GmbH&Co. Lochau Österreich |
| Daten | 73.000 m³ Brutto - Rauminhalt (BRI) I 8.675 m² Netto - Raumfläche (NRF) |
| Status | Wettbewerb 2009 I 2. Platz |