Zum Hauptinhalt springen Skip to page footer

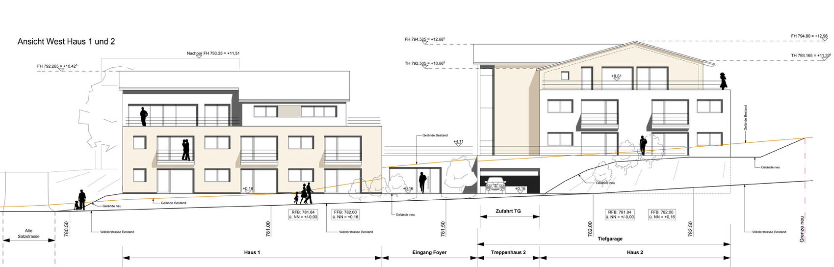
13 Wohneinheiten Wälderstraße

Weiler-Simmerberg I Deutschland

Projektdaten

Auftraggeber Privater Bauherr
Daten 2 Häuser
  1. Haus 8 WE I 2. Haus 5 WE
  13 Wohnungen 70 m² - 140 m²
  14 Stellplätze Tiefgarage
  1.120 m² Wohnfläche insgesamt
  2.300 m² Brutto - Grundfläche (BGF) I 7.265 m³ Brutto - Rauminhalt (BRI)
Status Gebaut I Fertigstellung 2013