Zum Hauptinhalt springen Skip to page footer

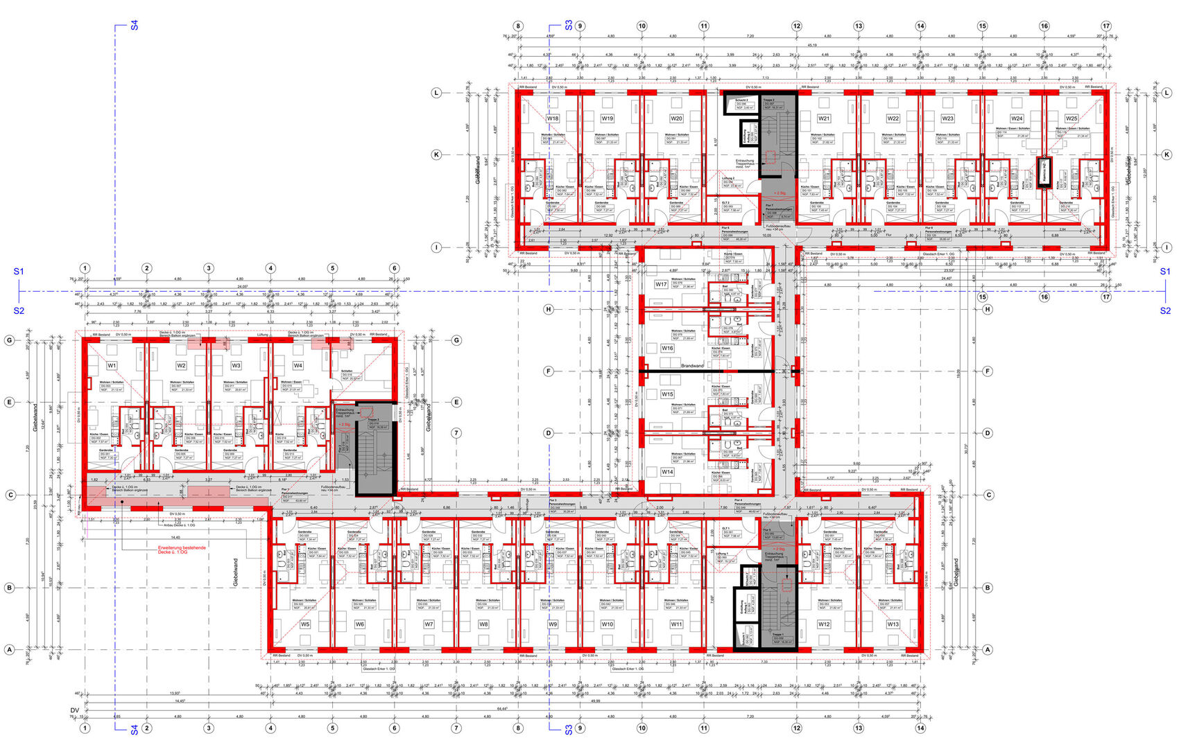
Aufstockung und Erweiterung

Seniorenpflegeheim Haus 22

Vaterstetten I Deutschland

Projektdaten

Auftraggeber Privater Bauherr
Daten 32 Pflege- und 11 Intensivpflegezimmer nach Umbau
  Aufstockung Dachgeschoss mit 25 Personalwohnung
  6.995 m² Netto - Raumfläche (NRF)
  8.025 m² Brutto - Grundfläche (BGF) I 28.785 m³ Brutto - Rauminhalt (BRI)
Status Gebaut I Fertigstellung 2019