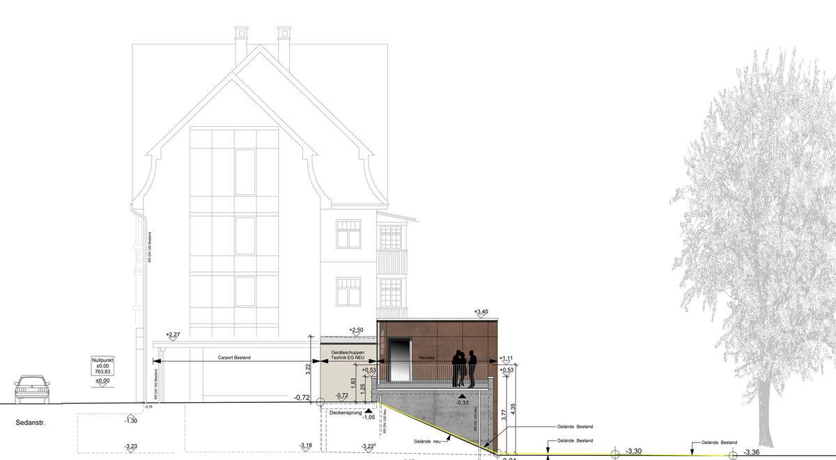
Wohn- und Geschäftshaus W
Lindenberg im Allgäu I Deutschland
Projektdaten
| Auftraggeber | Privater Bauherr |
| Daten | 917 m² Brutto - Grundfläche (BGF) I 3.195 m³ Brutto - Rauminhalt (BRI) |
| Status | Gebaut I Fertigstellung 2016 |
Lindenberg im Allgäu I Deutschland
| Auftraggeber | Privater Bauherr |
| Daten | 917 m² Brutto - Grundfläche (BGF) I 3.195 m³ Brutto - Rauminhalt (BRI) |
| Status | Gebaut I Fertigstellung 2016 |