Zum Hauptinhalt springen
Skip to page footer
Aktuelles
Submenu for "Aktuelles"
Projekte
Neubau 10 Wohneinheiten Grünenbach
Kindergarten St. Gallus
Umbau Raiffeisenbank Westallgäu eG
Bestandsaufnahme Mauderer Alutechnik GmbH
Neubau 32 Wohneinheiten P01
Neubau 34 Wohneinheiten P02
Neubau 11 Wohneinheiten Raiffeisenstraße
Neubau / Ersatzbau Rawe Electronic GmbH
Anbau Metropol Berlin
Neubau 29 Wohneinheiten P03
Neubau 16 Wohneinheiten P04
Neubau 53 Wohneinheiten P05
Neubau 45 Wohneinheiten P06
Städtebau Vaterstetten-Ost
Betreutes Wohnen
Neubau Seniorenpflegeheim mit 69 Pflegezimmern rollstuhlgerecht u. 25 Whg. (betreutes Wohnen)
Bauernhof Kita Vaterstetten
Umbau Seniorenpflegeheim H26 und Aufstockung mit 22 Personalwohnungen
Umbau Seniorenpflegeheim H22 und Aufstockung mit 25 Personalwohnungen
Neubau Seniorenpflegeheim mit 100 Pflegezimmern rollstuhlgerecht
Neubau Wohnresidenz Ölmühle mit Servicecenter der Volksbank eG
Projekte
Submenu for "Projekte"
Einfamilienhäuser
Haus BD
Haus BG
Haus R
Haus W
Haus WN
Villa Reutti
(current)
Haus D
Ferienhäuser
Ferienhäuser M
Mehrgeschossiger Wohnungsbau
Neubau 10 WE Grünenbach
Neubau 11 WE Blaustein
Neubau 32 WE P01
Neubau 34 WE P02
Neubau 29 WE P03
Neubau 16 WE P04
Neubau 53 WE P05
Neubau 45 WE P06
Neubau 5 WE Alte Salzstraße
Neubau 13 WE Wälderstraße
Neubau 8 WE Blaubergstraße
Neubau 32 WE Reichlensbergweg
Neubau 33 WE Reisergasse
Wohn- und Geschäftshäuser
Anbau Metropol Berlin
Wohn- und Geschäftshaus Ö
Wohn- und Geschäftshaus W
Wohn- und Geschäftshaus R
Kinderbetreuung
Kindergarten St. Gallus
Kindergarten St. Martin
Kindertagesstätte Rentschler
Bauernhof Kita Vaterstetten
Gesundheit und Pflege
Neubau Seniorenpflegeheim mit 69 Pflegezimmern rollstuhlgerecht u. 25 Whg. (betreutes Wohnen)
Umbau Seniorenpflegeheim H26 und Aufstockung mit 22 Personalwohnungen
Umbau Seniorenpflegeheim H22 und Aufstockung mit 25 Personalwohnungen
Neubau Seniorenpflegeheim mit 100 Pflegezimmer rollstuhlgerecht
Gesundheitszentrum Lindenberg
Geschäftshäuser
Anbau Metropol Berlin
Umbau Müller Drogeriemarkt
Gastronomie
Umbau Bäckerei mit Bistro Café
Industriebau
Bestandsaufnahme Mauderer Alutechnik GmbH
Neubau / Ersatzbau Rawe Electronic GmbH
Neubau, Um- und Anbau Bäckerei Schwarz
Industriebau Typico Megaprints
Städtebau
Städtebau Vaterstetten-Ost
Städtebau Haidenhof Passau
Städtebau Stadtpark Straubing
Städtebau Innblick
Wettbewerbe
Umbau Raiffeisenbank Westallgäu eG
Industriebau Typico Megaprints
Sozialer Wohnungsbau Angola
Städtebau Stadtmitte Thannhausen
Team
Submenu for "Team"
Team
Mitarbeiter
Auszeichnungen und Erwähnungen
Impressum
Presse
Datenschutz
Kontakt
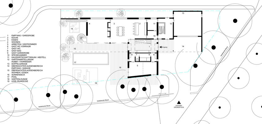
Villa Reutti
Reutti I Deutschland
Projektdaten
Auftraggeber
Willmann24 Bau GmbH und Co.KG
Status
Machbarkeitsstudie
Show larger version
Show larger version
Show larger version