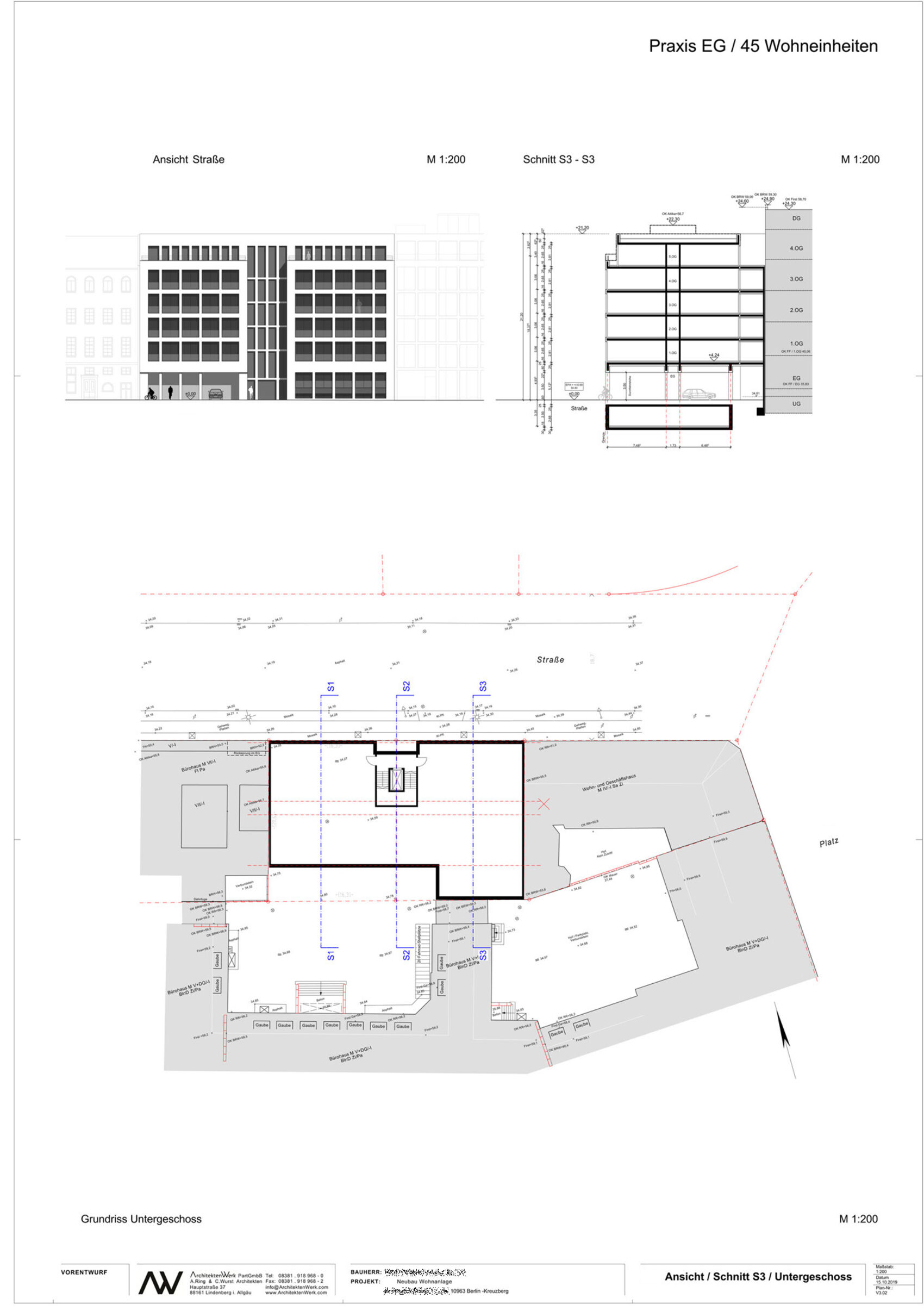
Neubau 45 Wohneinheiten P06 Berlin
Berlin - Kreuzberg I Deutschland
Projektdaten
| Auftraggeber | Privater Bauherr |
| Daten | 53 Wohnungen (Haus A 35 WE, Haus B 18 WE |
| 3.948 m² Wohnfläche | |
| 7.860 m² Brutto - Grundfläche (BGF) | |
| Status | Vorplanung |
Berlin - Kreuzberg I Deutschland
| Auftraggeber | Privater Bauherr |
| Daten | 53 Wohnungen (Haus A 35 WE, Haus B 18 WE |
| 3.948 m² Wohnfläche | |
| 7.860 m² Brutto - Grundfläche (BGF) | |
| Status | Vorplanung |