Zum Hauptinhalt springen Skip to page footer

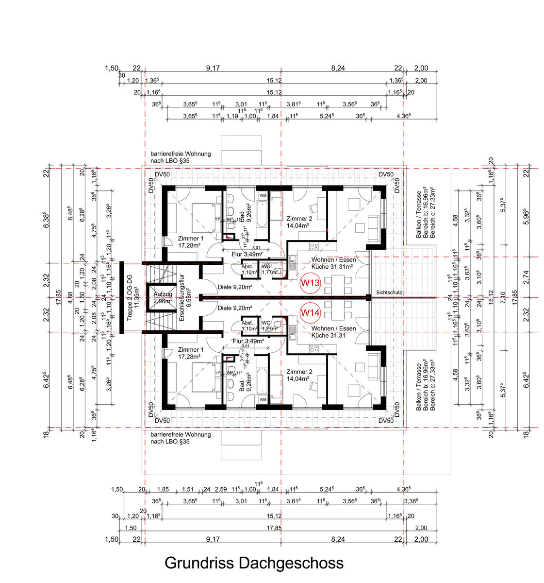
32 Wohneinheiten Reichlensbergweg

Blaubeuren I Deutschland

Projektdaten

Auftraggeber Privater Bauherr
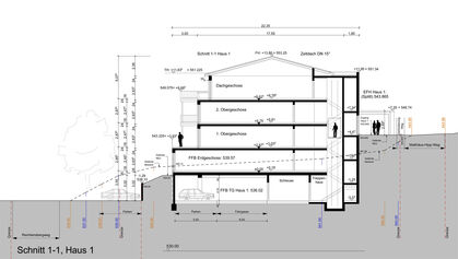
Daten Wohnanlage mit 3 Häuser
  1. Haus 14 WE I 2. Haus 9 WE I 3. Haus 9 WE
  32 Wohnungen 50 m² - 120 m²
  23 Stellplätze Tiefgarage
  2.750 m² Wohnfläche insgesamt
  4.945 m² Brutto - Grundfläche (BGF) I 15.620 m³ Brutto - Rauminhalt (BRI)
Status Gebaut I Fertigstellung 2016