Zum Hauptinhalt springen Skip to page footer

Gesundheitszentrum Lindenberg

Lindenberg im Allgäu I Deutschland

Projektdaten

Auftraggeber Ärztegemeinschaft Lindenberg
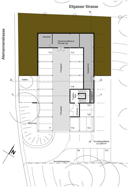
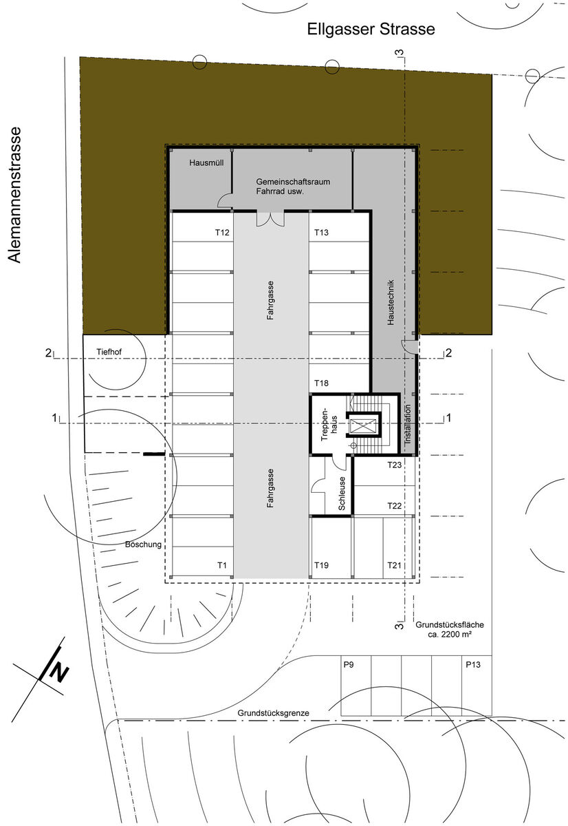
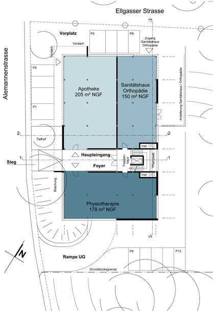
Daten 1.800 m² Brutto - Grundfläche (BGF) I 6.750 m³ Brutto - Rauminhalt (BRI)
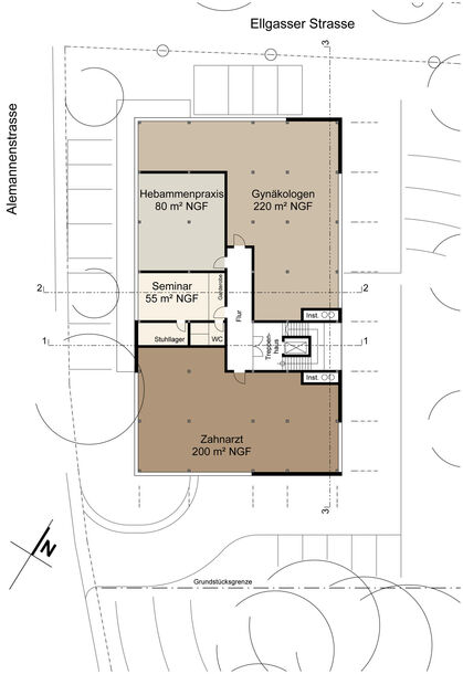
Nutzungen Apotheke I Sanitätshaus Orthopädie I Physiotherapie
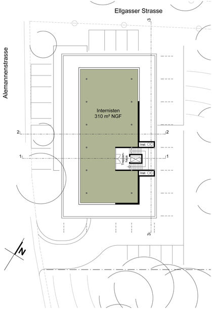
  Gynäkologen I Hebammenpraxis I Zahnarzt I Internisten
Status Machbarkeitsstudie